Venelles (13770) À Venelles (13), maison avec 4 pièces
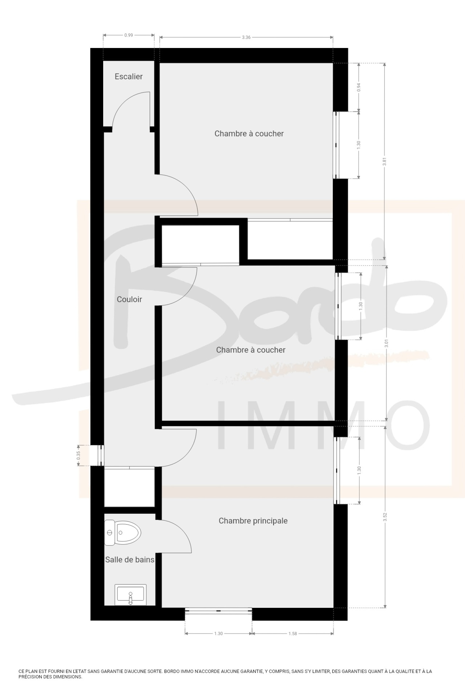
Acheter une grande villa à Venelles, à réhabiliter et réaménager (pas possible d'y loger durant les travaux). Si vous souhaitez visiter cette maison ou en découvrir d'autres, entrez rapidement en contact avec Bordo Immo. Cette habitation saura répondre aux besoins de votre petite famille. Le domicile possèdera un grand séjour avec espace cuisine en rez de jardin, et 4 chambres en étages. Sa surface intérieure développe environ 120m². La construction de ce bien remonte à 1972. Le terrain de 385m² permet de déjeuner en plein air. Cette propriété vous fait bénéficier d'une aire de parking privative avec 2 stationnements. Budget travaux de réhabilitation à prévoir.
Zone soumise à une obligation légale de débroussaillement.
Les informations sur les risques auxquels ce bien est exposé sont disponibles sur le site Géorisques
Montant estimé des dépenses annuelles d'énergie de ce logement pour un usage standard est compris entre 2 220 € et 3 060 € . 2021 étant l'année de référence des prix de l'énergie utilisés pour établir cette estimation.
Les informations recueillies sur ce formulaire sont enregistrées dans un fichier informatisé par La Boite Immo agissant comme Sous-traitant du traitement pour la gestion de la clientèle/prospects de l'Agence / du Réseau qui reste Responsable du Traitement de vos Données personnelles.
La base légale du traitement repose sur l’intérêt légitime de l'Agence / du Réseau.
Elles sont conservées jusqu'à demande de suppression et sont destinées à l'Agence / au Réseau.
Conformément à la loi « informatique et libertés », vous pouvez exercer votre droit d'accès aux données vous concernant et les faire rectifier en contactant l'Agence / le Réseau.
Si vous estimez, après avoir contacté l'Agence / le Réseau, que vos droits « Informatique et Libertés » ne sont pas respectés, vous pouvez adresser une réclamation à la CNIL.
Nous vous informons de l’existence de la liste d'opposition au démarchage téléphonique « Bloctel », sur laquelle vous pouvez vous inscrire ici : https://www.bloctel.gouv.fr
Dans le cadre de la protection des Données personnelles, nous vous invitons à ne pas inscrire de Données sensibles dans le champ de saisie libre
Ce site est protégé par reCAPTCHA, les Politiques de Confidentialité et les Conditions d'Utilisation de Google s'appliquent.
Détails des diagnostics énergétiques
Montant estimé des dépenses annuelles d'énergie de ce logement pour un usage standard est compris entre 2 220 € et 3 060 € . 2021 étant l'année de référence des prix de l'énergie utilisés pour établir cette estimation.
