Aix-en-Provence (13090) T3 dans résidence fermée
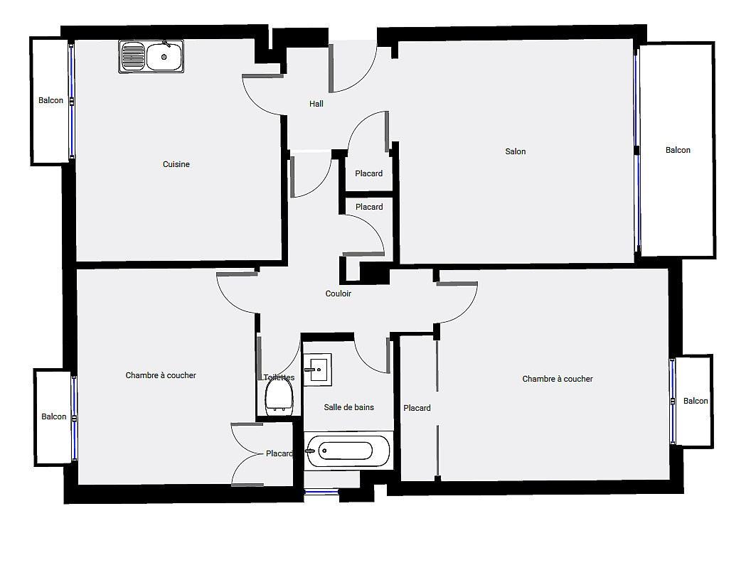
Appartement T3 sur la commune d'Aix-en-Provence. Cet appartement a été édifié en 1972 dans une résidence fermée avec places de parking. L'espace intérieur compte un séjour de 16.19m², 2 chambres, une cuisine équipée et une salle de bain. WC séparé. La superficie intérieure habitable est de 74.65m² loi Carrez. Ce logement vous fait bénéficier d'une cave. Il s'accompagne de deux balcons. Orientation est/ouest, au calme.
Les informations sur les risques auxquels ce bien est exposé sont disponibles sur le site Géorisques
Montant estimé des dépenses annuelles d'énergie pour un usage standard est compris entre 1 000 € et 1 400 € . Prix moyens des énergies indexés sur les années 2021, 2022 et 2023 (abonnements compris).
* CC : Charges comprises
Les informations recueillies sur ce formulaire sont enregistrées dans un fichier informatisé par La Boite Immo agissant comme Sous-traitant du traitement pour la gestion de la clientèle/prospects de l'Agence / du Réseau qui reste Responsable du Traitement de vos Données personnelles.
La base légale du traitement repose sur l’intérêt légitime de l'Agence / du Réseau.
Elles sont conservées jusqu'à demande de suppression et sont destinées à l'Agence / au Réseau.
Conformément à la loi « informatique et libertés », vous pouvez exercer votre droit d'accès aux données vous concernant et les faire rectifier en contactant l'Agence / le Réseau.
Si vous estimez, après avoir contacté l'Agence / le Réseau, que vos droits « Informatique et Libertés » ne sont pas respectés, vous pouvez adresser une réclamation à la CNIL.
Nous vous informons de l’existence de la liste d'opposition au démarchage téléphonique « Bloctel », sur laquelle vous pouvez vous inscrire ici : https://www.bloctel.gouv.fr
Dans le cadre de la protection des Données personnelles, nous vous invitons à ne pas inscrire de Données sensibles dans le champ de saisie libre
Ce site est protégé par reCAPTCHA, les Politiques de Confidentialité et les Conditions d'Utilisation de Google s'appliquent.
Détails des diagnostics énergétiques
Montant estimé des dépenses annuelles d'énergie pour un usage standard est compris entre 1 000 € et 1 400 € . Prix moyens des énergies indexés sur les années 2021, 2022 et 2023 (abonnements compris).
